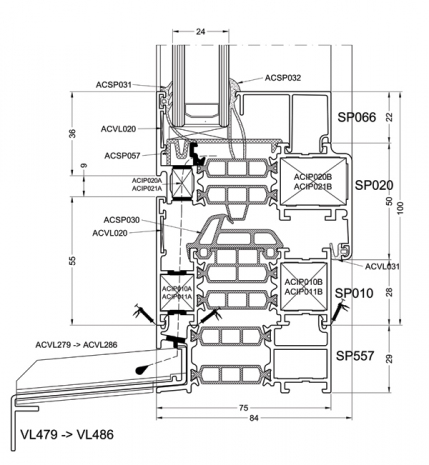
Das System mit erhöhter Wärmedämmung. Durch die thermische Dreikammerzwischenlagen, die zentrale Profilkammerdichtung und spezielle EPDM Dichtungen ereicht das System eine Wärmedurchgangszahl von UR < 2,0 W/m2K (Materialgruppe 1.0 gemäß DIN 4108). Diese thermische Zwischenlage ist zusätzlich mit einem Leimfaden ausgestattet, der während des Einbrennprozesses der Pulverbeschichteten Profile eine zuverlässige Wasser-dampfsperre und eine hervorragende Abdichtung bildet. Die Profilbautiefe für Fenster- und Türrahmen beträgt 75 mm die der Fensterflügel beträgt 84 mm. Das System SUPERIAL basiert auf dem gleichen Prinzip wie das IMPERIAL- System, also gleiche Eck-und T- Verbinder. Mit dem Befestigungssystem bestehend aus Glasleisten und EPDM Dichtungen werden die Füllungen zwischen 14 und 61 mm befestigt und abgedichtet.
Wegen der ständligen und kurzfristigen Preiserhöhungen von der Seite der Hersteller teilen wir unseren Kunden mit, dass die auf der Webseite befindlichen Preise und Lieferzeiten Informell sind. Genaue Preisangebote und Lieferzeiten können Ihnen unsere Kollegen per E-mail oder telefonisch geben.
Danke für Ihr Verständnis.


 
                     
                    






KLICKEN Sie auf unsere Facebook Seite!
facebook.com/meistherm